Zapolskiej 12

osiedle domów, Rumia

Dom 11B - Karta domu

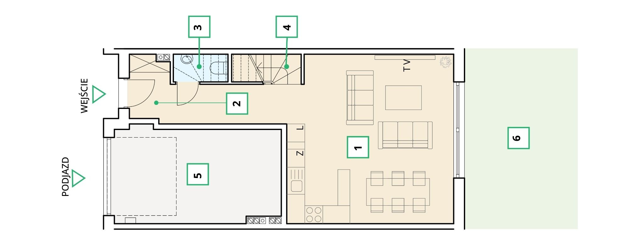
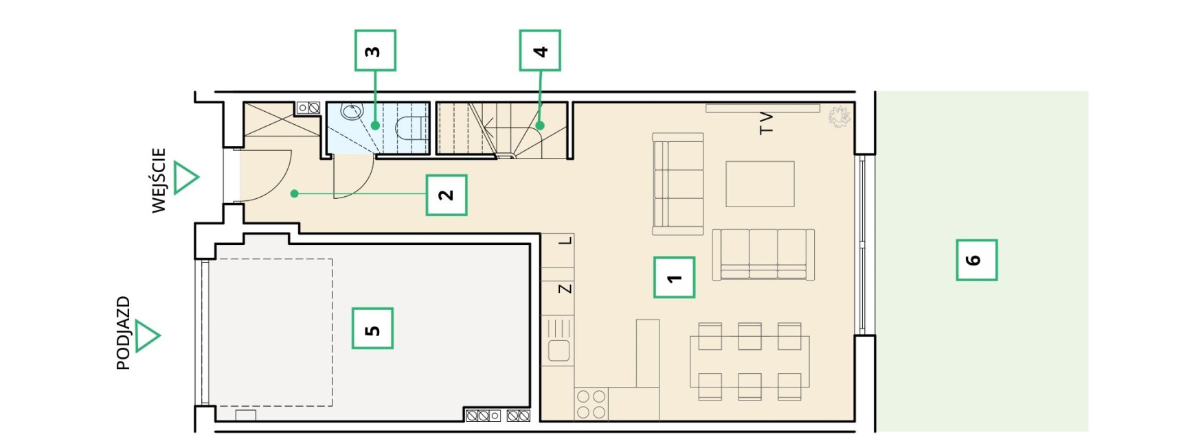
Parter

  • 1 Salon z aneksem kuchennym 30,43 m2
  • 2 Komunikacja 2,75 m2
  • 3 WC 1,14 m2
  • 4 Komunikacja 4,87 m2
  • 5 Garaż indywidualny 17,03 m2
  • Razem 56,22 m2
  • 6 Ogródek 32,6 m2

Piętro

  • 7 Sypialnia 17,26 m2
  • 8 Sypialnia 15,18 m2
  • 9 Komunikacja 9,66 m2
  • 10 Pomieszczenie gospodarcze 3,38 m2
  • 11 Sypialnia 11,43 m2
  • 12 Łazienka 5,74 m2
  • Razem 62,65 m2

Masz pytania?

Chętnie odpowiemy na wszystkie pytania i rozwiejemy wątpliwości, pomagając w wyborze idealnego domu, mieszkania lub lokalu. Zapraszamy do kontaktu.

    *pola wymagane